LELIEGRACHT 35

OMSCHRIJVING

Bijzonder fraai grachtenpand bestaande uit een voor- en achterhuis verdeeld over vijf woonlagen en in gebruik te nemen als één woonhuis, gelegen op toplocatie tussen de Keizers- en Prinsengracht. Het monumentale pand is de afgelopen twee jaar volledig gerenoveerd met respect voor de vele originele details. Fijne achtertuin met gunstige zonligging (zuidwest) met fenomenaal uitzicht op de Westertoren. Rijksmonument, en gelegen op eigen grond. Het pand leent zich uitstekend voor kantoor of praktijk aan huis.

OMGEVING

Het huis is heel prettig gelegen in het historische centrum van Amsterdam, met alle voorzieningen van de stad binnen loopafstand; de gezellige Jordaan, de Noordermarkt, de 9 Straatjes, bijzondere winkels, fijne restaurants en prima OV-aansluiting naar het Centraal Station.

HET PAND

Dit pand werd oorspronkelijk gebouwd rond 1615. In de 18e eeuw werd een extra woonlaag en de uitbouw aan de achterzijde gerealiseerd. De gestuukte ornamenten in de hal en achterkamers zijn zeer waarschijnlijk uit die periode. Rond 1909 werden het balkon en de veranda aan de achterzijde geplaatst.

Zeldzaam plafond

Tijdens de renovatiewerkzaamheden van de afgelopen twee jaar werd op de beletage achter het gestuukte plafond(het 18e-eeuwse ornamentenplafond was reeds verdwenen) een prachtig beschilderd plafond ontdekt. Na onderzoek door experts bleek het te gaan om een zeer zeldzaam plafond met schilderingen uit 1635, in de zogenaamde ‘knorpelstijl’. Het houten plafond is versierd met zgn. ranken- en vogeltjesschildering en op de zijkanten van de balken zijn voorstellingen van landschappen, stadsgezichten en jachtpartijen te zien. Ten behoeve van het aanbrengen van een ornamentenplafond werden in de 18e eeuw een aantal balken beschadigd en enkele originele
planken verwijderd. Dit is inmiddels vakkundig hersteld. Gezien de hoge cultuurhistorische waarde zijn er verscheidene subsidiemogelijkheden (door de gemeente is al een substantieel bedrag toegekend) voor volledige restauratie van dit unieke plafond.

Fundering

Rond 1960 werd ten behoeve van uitbreiding van de Verzekeringsbank (pand hoek Leliegracht en Keizersgracht), het 17e-eeuwse pand op nummer 33 gesloopt. Tijdens de bouw van het nieuwe deel van de bank werd ook de linker zijmuur van ons pand opnieuw gefundeerd. Rond 1977 werd de fundering van het rechterpand op nummer 37 aangepakt waarbij funderingsherstel heeft plaatsgevonden. Uit onderzoek blijkt dat nummer 35 en 37 een gemeenschappelijke bouwmuur hebben, waardoor de rechterzijde van ons pand ook opnieuw gefundeerd is.

Belétage (89m2)

De beletage bestaat uit een riante kamer aan de voorzijde met 3,5m hoge (geschilderde) plafonds. In het tussengedeelte kan een pantry geplaatst worden. Deze etage is ideaal voor kantoor of praktijk aan huis. Vanuit de hal is een toilet bereikbaar. Een marmeren trap leidt naar de opkamer in het achterhuis, zijnde een fraaie kamer met ornamenten en de keukenaansluitingen (keuken door koper zelf te plaatsen), openslaande deuren naar de veranda over de volle breedte met een stijlvol gietijzeren hekwerk. Vanaf de veranda leidt een trap naar de tuin van ca. 46m2.

Eerste verdieping (91m2)

Op de eerste verdieping is de riante woonkamer in het voorhuis met balkenplafond, drie hoge ramen aan de grachtzijde, en ramen aan de achterzijde naar het lichthof. In het achterhuis een fraaie kamer met ornamenten plafond, schouw en serre met uitzicht over de binnentuinen.

Tweede verdieping (80m2)

De tweede verdieping heeft drie goede slaapkamers (twee in het voorhuis en één in het achterhuis met balkon), separaat toilet vanuit de hal bereikbaar, en een zeer luxe badkamer met inloopdouche, ligbad, messing kranen en dubbele wastafel.

Kapverdieping (26m2)

Een vaste trap leidt naar de kapverdieping met dakkapel en goede stahoogte, te gebruiken als gastenverblijf met een slaapkamer en een tweede badkamer aan de achterzijde met douche, toilet en wastafel. Op de overloop is een tweede CV ketel, tbv de twee bovenste verdiepingen.

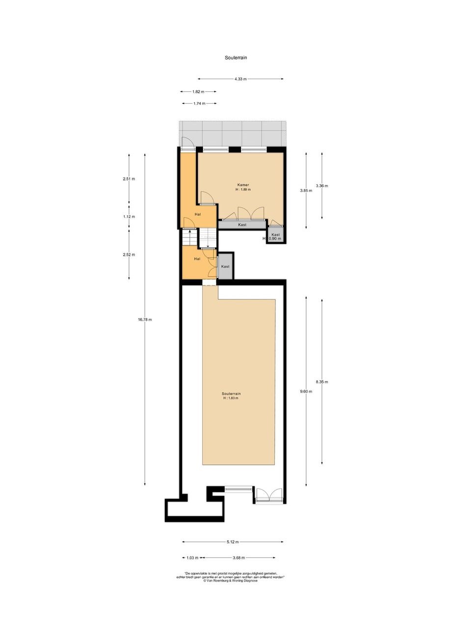
Souterrain (57m2)

Het souterrain in het voorhuis is direct vanaf de straat bereikbaar. Gemetselde vloer en stahoogte onder de balken (1,83m). Hier bevinden zich ook de meterkast en de wasmachine-aansluiting. Aan de achterzijde leidt een trapje naar de overloop met kastruimte en toegang naar de kamer in het achterhuis (stahoogte 1,89m) met toegang tot de tuin. Onder deze kamer in het achterhuis is nog een kelder met CV ketel, ideaal te gebruiken als wijnkelder (stahoogte 1,79m). Vanwege de stahoogte (lager dan 2 meter) mag het souterrain volgens NEN2580 niet als woonruimte worden aangemerkt, maar als ‘overige ruimte’. Echter is het souterrain in het voorhuis prima bruikbaar als speelruimte en/of opslagruimte. De kamer in het achterhuis (stahoogte 1,89m) kan prima dienen als slaap- of studeerkamer.

Tuin (46m2)

De verzorgde achtertuin is ideaal en rustig gelegen op het zuidwesten dus de hele dag zon. De tuin geeft veel privacy en grenst aan andere diepe binnentuinen in het blok Keizersgracht, Leliegracht en Prinsengracht. Vanuit de tuin heeft u geweldig uitzicht op de Westerkerk.

BIJZONDERHEDEN

-Bouwjaar rond 1615

-Vele originele details uit de 17e en 18e eeuw nog aanwezig

-Eigen grond

-Rijksmonument

-Het pand is totaal gerenoveerd, oa nieuwe leidingen, parketvloeren, schilder- en stucwerk

-Restauratie van het plafond op de beletage is voor de koper. Subsidie reeds toegekend door de gemeente.

-Verwarming door middel van twee CV-combiketels Intergas

-Twee luxe badkamers

-Keuken(s) door koper zelf te plaatsen

-Video intercom

-De niet-bewoners clausule zal worden opgenomen in de koopakte. De huidige eigenaar heeft het pand zelf nooit bewoond.

Bekijk de Locatie

SINGEL 32G